Описание
Комплектация внешний контур 585 787,00 :
— Силовой каркас — древесина хвойных пород.
— Лаги пола сухая строганая доска 45х195
— Кровля — профлист с полимерным покрытием. Вентилируемый зазор с прокладкой супердиффузионной мембраны.
— Отделка наружных стен — вертикальна обшивочная доска (16мм). Вентилируемый фасад с прокладкой паропроницаемой ветро-влагозащитой мембраны.
— Окно металлопластиковое распашное тройного остекления белое с двумя скосами сверху 2000 х 2200 мм — 1шт
— Чистовой пол — доска строганая камерной сушки 20мм
Дополнительная комплектация:
— Замена всех элементов каркаса естественной влажности на сухой строганый материал. 70 350,00
— Деревянная антисептированная обвязка свай за м.пог. 1 000,00 х 16,00 = 16 000,00
— Утепление стен, пола и потолка базальтовым плитным утеплителем с прокладкой пароизоляции. Толщина утеплителя: стены и пол 150мм; потолок 200мм. 146 649,00
— Увеличение толщины утеплителя стен и пола на 50мм до 200мм за один м2 (направление внутренней отделки стен при этом меняется на вертикальное) 440,00 х 93,00 = 40 920,00
— Замена бюджетной пароизоляции на профессиональную с проклейкой всех стыков и разрывов специальной лентой. (необходимо для круглогодичного проживания) 47 137,00
— Замена доски пола 20мм на 27мм 27 978,00
— Внутренняя отделка стен, и потолка вагонкой «штиль» категории «АВ» (на стенах горизонтально) 171 258,00
— Устройство дополнительной межкомнатной перегородки с отделкой вагонкой «штиль» сорт АВ и толщиной 100мм за м2 3 442,00 х 29,50 = 101 539,00
— Устройство шпонированной межкомнатной двери «порта 22» с фурнитурой и с стеклянными вставками 20 165,00 х 2,00 = 40 330,00
— Устройство банной стеклянной двери 22 122,00
— Замена окна 2000 х 2200 мм на оконно-дверной блок 24 957,00
— Металопластиковое распашное белое окно, тройного остекления. Размер 1750мм х 800мм. (250 от пола) 24 297,00
— Металопластиковое распашное белое окно, тройного остекления. Размер 1500мм х 800мм. (250 от пола) 21 100,00
— Металлопластиковое распашное белое окно, тройного остекления,600мм х 600мм 10 335,00
— Металлопластиковое глухое белое окно, тройного остекления,со скосом сверху 2300мм х 1500мм 39 584,00
— Металлопластиковое глухое белое окно, тройного остекления, с двумя скосами сверху (над лофтом) 565мм х 2420мм 17 500,00
— Обработка всех элементов каркаса антисептиком (для гарантии на внутреннюю конструкцию) 23 595,00
— Монтаж защитной оцинкованной сетки от грызунов, ячея – 5мм 39 000,00
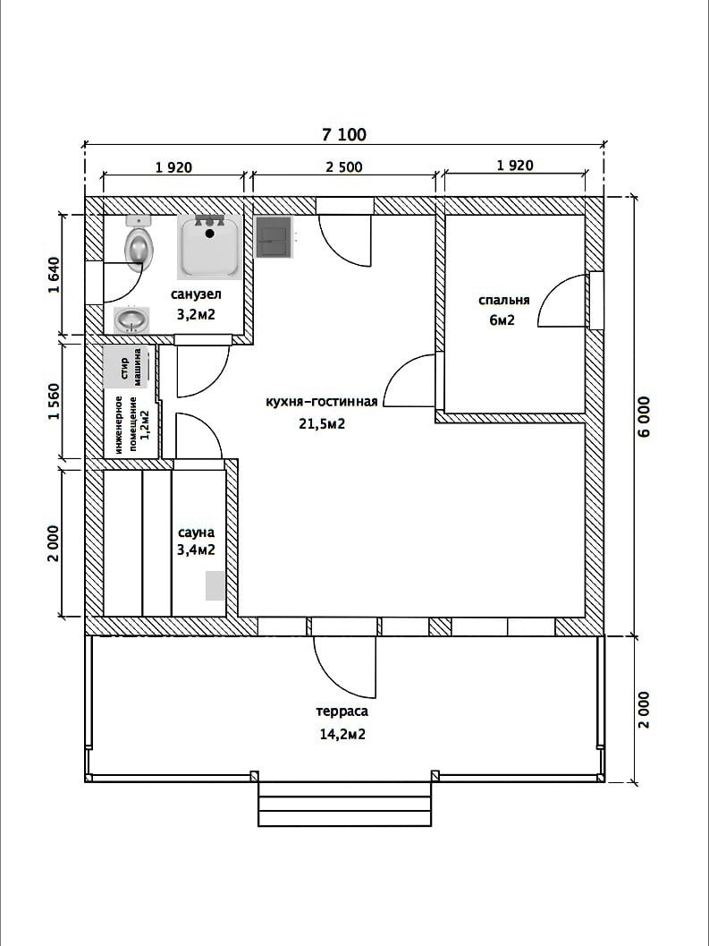
— Устройство террасы под кровлей 2м х 7,1м (Пол — доска 20мм. Потолок и стены вагонка 16мм. Ограждения брусок) 98 178,00
— Покраска снаружи деревянных элементов дома антисептическим лаком. Основной цвет: «полисандр» дополнителный: белый Комбинация цветов 2, кроме колонн на террасе (колонны террасы белые) 41 843,90
— Покраска внутри деревянных элементов стен и потолка (без учета перегородок, до монтажа) лаком в 2 слоя 58 498,20
— Покрытие перегородок лаком в 2 слоя (до монтажа) за м2 545,00 х 50,00 = 27 250,00
— Укладка ламината класс 33, толщина 8мм за м2 (плинтуса темные) 1 831,50 х 30,00 = 54 945,00
— Покрытие пола в парной в 2 слоя спецсоставом 2 829,00
— Покраска всех элементов террасы (2м х 7,1м) антисептическими составами, в том числе покраска пола маслом в два слоя до монтажа 37 432,50
— Устройство водосточной системы при террасе 2м (необходимо для гарантии на наружную отделку) 40 187,00
— Устройство деревянного крыльца в 4 ступени 14 000,00
— Электрика (проводка скрытая в стенах (кабель NYM) , 5 светильников, 4 выключателя, 6 двойных розеток, электрощит с 4 автоматами ) 103 511,15
— Дополнительная электро-точка (выключатель) 2 949,30 х 2,00 = 5 898,60
— Дополнительная электро-точка (светильник) 2 949,30 х 4,00 = 11 797,20
— Дополнительная электро-точка (розетка) 2 949,30 х 10,00 = 29 493,00
— Дополнительная электро-точка (автомат) 2 949,30 х 6,00 = 17 695,80
— Уличный светильник (террасса) 4 674,80 х 2,00 = 9 349,60
— Установка термостойкого светильника (сауна) 4 962,00 х 2,00 = 9 924,00
— Установка деревянных решеток на светильник (сауна) 887,00 х 2,00 = 1 774,00
— Установка электро-печи каменки, предоставленной заказчиком, подключение через отдельный защитный автомат 15 898,00
— Скрытая разводка труб водопровода, канализации. Расширительный бак 50 литров, бойлер электрический 80 литров. Унитаз, раковина со смесителем и с навесной тумбой в санузле, душевая кабина, разводка воды под стиральную машину и смеситель на кухне. 254 282,00
— Анемостат вентиляции в каждой комнате 4 240,00 х 4,00 = 16 960,00
— Вытяжка из зоны кухни через дефлектор на крыше 26 791,00
— Прокладка фольгированной изоляции в сауне с проклейкой швов в стенах, полу и потолке с устройством контр обрешетки 603,00 х 25,70 = 15 497,10
— Устройство банных полков (осина категории А) руб/м2 5 847,00 х 2,00 = 11 694,00
— Замена хвойной вагонки на осиновую сорт «А» (потолок сауны) 1 013,00 х 4,40 = 4 457,20
— Лофт с лестницей (подиум под кровать 1500х2500 на высоте 2000мм от пола) 33 450,00
— Командировочные расходы на время монтажа руб/день 1 680,00 х 7,00 = 11 760,00
— Проживание рабочих на время монтажа 11 025,00
— Свайно-винтовой фундамент 16 свай 108х2500 ( ориентировочно 92 400 руб ) 0,00
— Доставка двумя шаландами (ориентировочно 146 000 руб ) 0,00
70
— Работа автомобиля с гидроманипулятором (ориентировочно 6 часов х 2300руб = 13 800 руб ) 0,00
Итого: 2 436 900,00























Отзывы
Отзывов пока нет.