Описание
Комплектации
Комплектация «с внутренней отделкой» 2 677 824 руб.:
• Каркас – строганный материал хвойных пород камерной сушки, обработанный антисептиком
• Покрытие кровли – профлист с полимерным покрытием
• Утепление – базальтовый плитный утеплитель: 200 мм пол и кровля, стены 150мм. Ветро-влагозащитная супер диффузионная мембрана. Профессиональная пароизоляция с проклейкой всех стыков и разрывов специальной лентой.
• Окна и наружные двери — двухкамерные метало-пластиковые профиль 58мм.
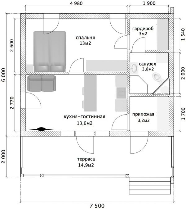
• Межкомнатные перегородки согласно плана
• Наружная отделка – вертикальная обшивочная доска и брусок с покраской до монтажа антисептическим лессирующим лаком «Тиккурила» в 2 слоя.
• Водосточная система – желоба, трубы.
• Внутренняя отделка стен, и потолка вагонкой «штиль» под покраску
• Пол – доска пола шпунтованная под покраску или укладку защитных покрытий
• Крытая терраса 2х7,5м, лестница на террасу в 4 ступени. Покрытие всех элементов террасы антисептическими лессирующими составами.
• Монтаж дома на участке
Комплектация «под ключ, для постоянного проживания» 3 646 514 руб. :
• Каркас – строганный материал хвойных пород камерной сушки, обработанный антисептиком
• Покрытие кровли – профлист с полимерным покрытием
• Утепление – перехлестное, базальтовый плитный утеплитель: 200 мм пол, стены и кровля. Ветро-влагозащитная супер диффузионная мембрана. Профессиональная пароизоляция с проклейкой всех стыков и разрывов специальной лентой.
• Окна и наружные двери — двухкамерные метало-пластиковые профиль 58мм.
• Межкомнатные двери
• Межкомнатные перегородки согласно плана
• Наружная отделка – вертикальная обшивочная доска и брусок с покраской до монтажа антисептическим лессирующим лаком «Тиккурила» в 2 слоя.
• Водосточная система – желоба, трубы.
• Внутренняя отделка стен, и потолка вагонкой «штиль» с покраской до монтажа интерьерным лессирующим лаком «Тиккурила» в 2 слоя.
• Ламинат на полу класс 33, толщина 8мм (в санузле влагостойкий ламинат)
• Скрытая разводка труб водопровода, канализации. Расширительный бак 50 литров, бойлер электрический 80 литров. Унитаз, раковина, смеситель, душевая кабина.
• Вся электрика: проводка скрытая в стенах (специальный кабель NYM), светильники, розетки, выключатели, электрощит с автоматами.
• Анемостат вентиляции в каждой комнате. Вытяжка из зоны кухни через кровлю.
• Монтаж дома на участке, запуск дома в эксплуатацию (при наличии наружных сетей)
• Крытая терраса 2х7,5м, 2 лестницы на террасы в 4 ступени. Покрытие всех элементов террасы антисептическими лессирующими составами.
Дополнительные расходы:
• Транспортно-командировочные расходы – рассчитываются отдельно, зависят от расположения вашего участка
• Фундамент свайно-винтовой
• Организация и подведение наружных сетей к точке монтажа дома
• Конвекторы отопительные электрические
• Мебель и бытовая техника
Дополнительные опции:
• Второй санузел
• Дополнительные розетки под конвекторы
• Уличные светильники и розетки
• Монтаж инфракрасного теплого пола
• Печь-камин
• Сауна
• Дополнительная открытая терраса
• Ламинация окон и наружных дверей (изменение цвета)
• Увеличение ширины профиля метало-пластиковых окон (актуально для панорамных окон при отоплении электричеством, улучшает энерго-эффективность дома)
• Монтаж защитной оцинкованной сетки от грызунов, ячея – 5мм
• Уличная лестница длиной более 4 ступеней

Круглогодичное использование

100% контроль
качества

Работа
по договору

Фиксированная и прозрачная цена

Гарантия
до 5 лет








Отзывы
Отзывов пока нет.