Описание
Комплектации
Комплектация «с внутренней отделкой» 3 770 482 руб.
• Каркас – строганный материал хвойных пород камерной сушки, обработанный антисептиком
• Покрытие кровли – профлист с полимерным покрытием
• Утепление – базальтовый плитный утеплитель: 200 мм пол и кровля, стены 150мм. Ветро-влагозащитная супер диффузионная мембрана. Профессиональная пароизоляция с проклейкой всех стыков и разрывов специальной лентой.
• Окна и наружные двери — двухкамерные метало-пластиковые профиль 58мм.
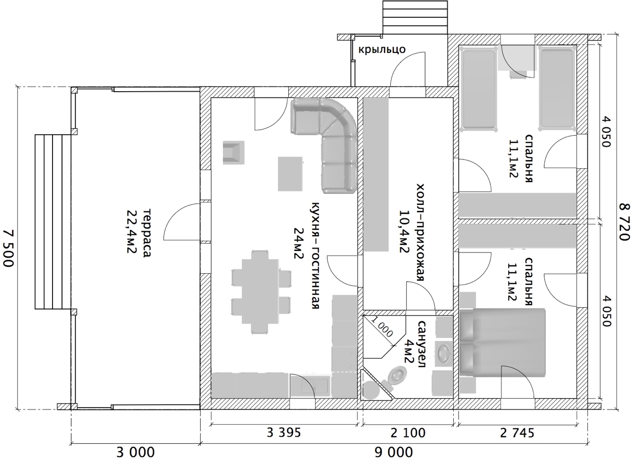
• Межкомнатные перегородки согласно плана
• Наружная отделка – вертикальная обшивочная доска и брусок с покраской до монтажа антисептическим лессирующим лаком «Тиккурила» в 2 слоя.
• Водосточная система – желоба, трубы.
• Внутренняя отделка стен, и потолка вагонкой «штиль» под покраску
• Пол – доска пола шпунтованная под покраску или укладку защитных покрытий
• Монтаж дома на участке
• Крытая терраса 3х7,5м и крытая терраса 1,2*2,5м, 2 лестницы на террасы в 4 ступени. Покрытие всех элементов террасы антисептическими лессирующими составами.
Комплектация «под ключ, для постоянного проживания» 4 955 629 руб.
• Каркас – строганный материал хвойных пород камерной сушки, обработанный антисептиком
• Покрытие кровли – профлист с полимерным покрытием
• Утепление – перехлестное, базальтовый плитный утеплитель: 200 мм пол, стены и кровля. Ветро-влагозащитная супер диффузионная мембрана. Профессиональная пароизоляция с проклейкой всех стыков и разрывов специальной лентой.
• Окна и наружные двери — двухкамерные метало-пластиковые профиль 58мм.
• Межкомнатные двери
• Межкомнатные перегородки согласно плана
• Наружная отделка – вертикальная обшивочная доска и брусок с покраской до монтажа антисептическим лессирующим лаком «Тиккурила» в 2 слоя.
• Водосточная система – желоба, трубы.
• Внутренняя отделка стен, и потолка вагонкой «штиль» с покраской до монтажа интерьерным лессирующим лаком «Тиккурила» в 2 слоя.
• Ламинат на полу класс 33, толщина 8мм (в санузле влагостойкий ламинат)
• Скрытая разводка труб водопровода, канализации. Расширительный бак 50 литров, бойлер электрический 80 литров. Унитаз, раковина, смеситель, душевая кабина.
• Вся электрика: проводка скрытая в стенах (специальный кабель NYM), светильники, розетки, выключатели, электрощит с автоматами.
• Анемостат вентиляции в каждой комнате. Вытяжка из зоны кухни через кровлю.
• Монтаж дома на участке, запуск дома в эксплуатацию (при наличии наружных сетей)
• Крытая терраса 3х7,5м и крытая терраса 1,2*2,5м, 2 лестницы на террасы в 4 ступени. Покрытие всех элементов террасы антисептическими лессирующими составами.

Круглогодичное использование

100% контроль
качества

Работа
по договору

Фиксированная и прозрачная цена

Гарантия
до 5 лет













Отзывы
Отзывов пока нет.