Модульный дом МД-73 + 20 см
5521500,00руб.
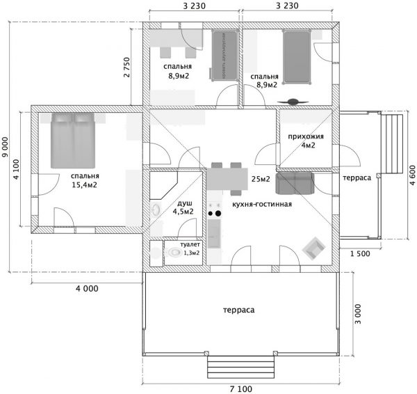
Проект: Модульный дом МД-73 + 20 см
Площадь: 73 м2
Место установки: Псковская обл., р-н Псковский, д. Звенковичи.
Место установки: Псковская обл., р-н Псковский, д. Звенковичи.
Время установки: 10.03.2025
Цена строения: 5 521 500 руб
Детали
| Место установки для НР | Псковская обл., р-н Псковский, д. Звенковичи. |
|---|















Отзывы
Отзывов пока нет.